Projektujemy instalacje przemysłowe z pasją i doświadczeniem



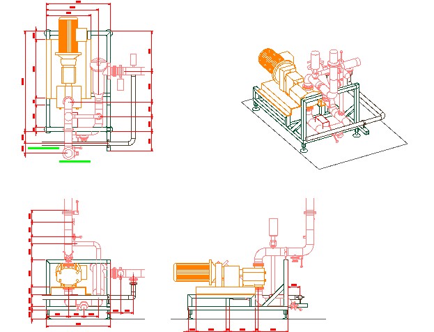
TomCAD to biuro projektowe z ponad 14-letnim doświadczeniem, specjalizujące się w kompleksowym projektowaniu instalacji przemysłowych dla branży spożywczej, kosmetycznej, chemicznej i petrochemicznej. Oferujemy rozwiązania od koncepcji, przez projekty wykonawcze, aż po realizację i uruchomienie, gwarantując najwyższą jakość i innowacyjność.
Eksperci w projektowaniu instalacji dla przemysłu
Prezentujemy naszą misję oraz wartości, które napędzają rozwój firmy i wyznaczają kierunek naszych działań.

TomCAD – projektujemy instalacje przemysłowe z pasją
Oferujemy kompleksowe projektowanie instalacji przemysłowych, gwarantując najwyższą jakość i pełne zadowolenie klientów.
Projektowanie instalacji przemysłowych
Dopasowujemy projekty do indywidualnych wymagań branży i specyfiki klienta, zapewniając efektywność i bezpieczeństwo.
Realizacja i nadzór inwestycji
Zapewniamy pełną kontrolę nad procesem budowy i uruchomienia instalacji, dbając o terminowość i jakość.
Doradztwo techniczne i optymalizacja
Oferujemy eksperckie wsparcie i rozwiązania optymalizujące procesy produkcyjne i instalacyjne.
Tworzymy innowacyjne instalacje przemysłowe
Przedstawiamy kluczowe atuty i możliwości, które wyróżniają nasze projekty oraz przynoszą realne korzyści klientom.

Kompleksowa analiza potrzeb
Dokładnie identyfikujemy wymagania, aby dostarczyć optymalne rozwiązania.
Profesjonalne wykonawstwo
Realizujemy projekty z precyzją i zgodnie z najwyższymi standardami branżowymi.
Wsparcie na każdym etapie
Zapewniamy pełne wsparcie od koncepcji po uruchomienie instalacji.
Kompleksowe projektowanie instalacji przemysłowych
Skontaktuj się z nami szybko i wygodnie, aby uzyskać wycenę, pomoc, lub jeżeli chcesz dołączyć do zespołu
ul. Powstańców 1863R. 21
99-400 Łowicz
+48-725-489-495
biuro@tomcad.pl

